手描きのスケッチやラフをアップロードすると、AIが数秒でスケッチを間取り図に変換。建築士、デザイナー、住まいづくりを考える方に最適です。

スケッチをアップロードして、AIがプロの間取り図に変換する様子をご覧ください
スケッチをアップロードして変換設定をカスタマイズ
クリックしてアップロード、またはスケッチをここにドラッグ
JPG、PNG、GIF対応、最大10MB




生成画像プレビュー
スケッチをアップロードして説明を追加すると、AI生成画像が表示されます
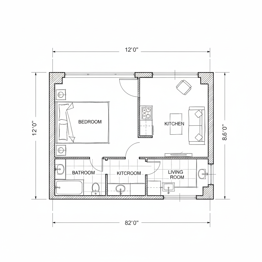
AIがラフスケッチをプロの間取り図に変換する仕組みをご紹介します。
当社のAIは手描きスケッチを正確に理解します。壁・ドア・窓・部屋の境界を、ラフな図面からも認識。デザイン意図を解釈し、どれだけ雑なスケッチでも自動でディテールを補完します。

乱れたスケッチが、クリーンでプロ品質の間取り図に。AIが曲がった線をまっすぐにし、比率を補正し、建築表現を加えつつ、元のデザイン意図はそのまま保持します。

スケッチに書きなぐった寸法も大丈夫。AIが手書きの寸法を読み取り、完成した間取り図に反映します。読みにくい数字も認識し、きれいなプロの注釈に変換します。

ナプキンの落書きからノートのスケッチまで、手描きの間取り図はすべて対応。いつでもどこでもアイデアをキャッチし、プロの図面に仕上げます。

間取り図の見た目を選べます。シンプルな白黒の図面、カラフルなプレゼン用、3Dビューまで。用途に合ったスタイルをご用意しています。

3つの簡単なステップでラフスケッチをプロの間取り図に
手描きスケッチを撮影するか、デジタルの下書きをアップロード
AIがスケッチを解析し、プロ仕様のフォーマットに変換
プロの間取り図を取得し、必要に応じてさらに編集
スケッチをAIで間取り図に変換するために必要なものがすべて揃っています。
ナプキンの走り書き、ノートのスケッチ、方眼紙の詳細図まで、当社のAIツールはすべて処理できます。完璧な線や正確な寸法は不要。アイデアをキャッチするだけで、あとはお任せ。消しゴム跡や修正、読みにくい字でも問題なく動作します。
30秒以内にスケッチを間取り図に変換。AIが画像を即座に処理し、建築要素を認識してクリーンな線に変換。長時間の手作業は不要で、すぐに結果が得られ、デザインの試行も素早く行えます。
AIは単に線をなぞるだけではありません。デザイン意図を理解します。ぐにゃぐにゃの壁はまっすぐに、不均一な角は正確な90度に、ばらつくドア幅は標準サイズに。プロの建築士が描いたような仕上がりになります。
出力は実際の建築基準と慣例に従います。適切な壁厚、標準的なドア・窓の表現、正確な部屋名、プロの寸法注釈。施工計画やインテリアデザインにそのまま使える間取り図が完成します。
多くのデザイナー・クリエイター・企業が、当社のスケッチ→間取り図AIでアイデアを即座にビジュアルにしています
"このツールでワークフローが一変しました。以前はクライアントのスケッチをCADで何時間も清書していました。今はナプキンに描いた図の写真を撮って、数秒でスケッチを間取り図に変換。眠らないアシスタントのようです。"
Sarah Mitchell
インテリアデザイナー
"リフォーム業者として、施主からラフなスケッチをよくもらいます。この変換ツールで、そのアイデアをすぐに実務で使える図面にできます。寸法読み取りは驚くほど正確で、自分の乱れた字まで読んでくれます。"
James Rodriguez
リフォーム業者
"プロではなく、夢の家を計画している一般人です。何年もノートに間取りのアイデアを描いてきました。素人のスケッチをアップロードして、本物の建築図面のように見られるのはすごい。建築士に自分のイメージを伝えるのが格段に楽になりました。"
Emily Chen
住まいづくり愛好家
スケッチから間取り図への変換に関するよくある質問
紙に手描きしたスケッチ(撮影したもの)、デジタルスケッチ、ラフ、ナプキンに描いた図でもアップロードできます。明るい背景に濃い線ではっきり描かれたものが最も効果的ですが、品質のばらつきにも対応しています。
手描きのアイデアを数秒でプロの間取り図に